1 Botany Circuit, Armstrong Estate, Mount Duneed 3217 VIC
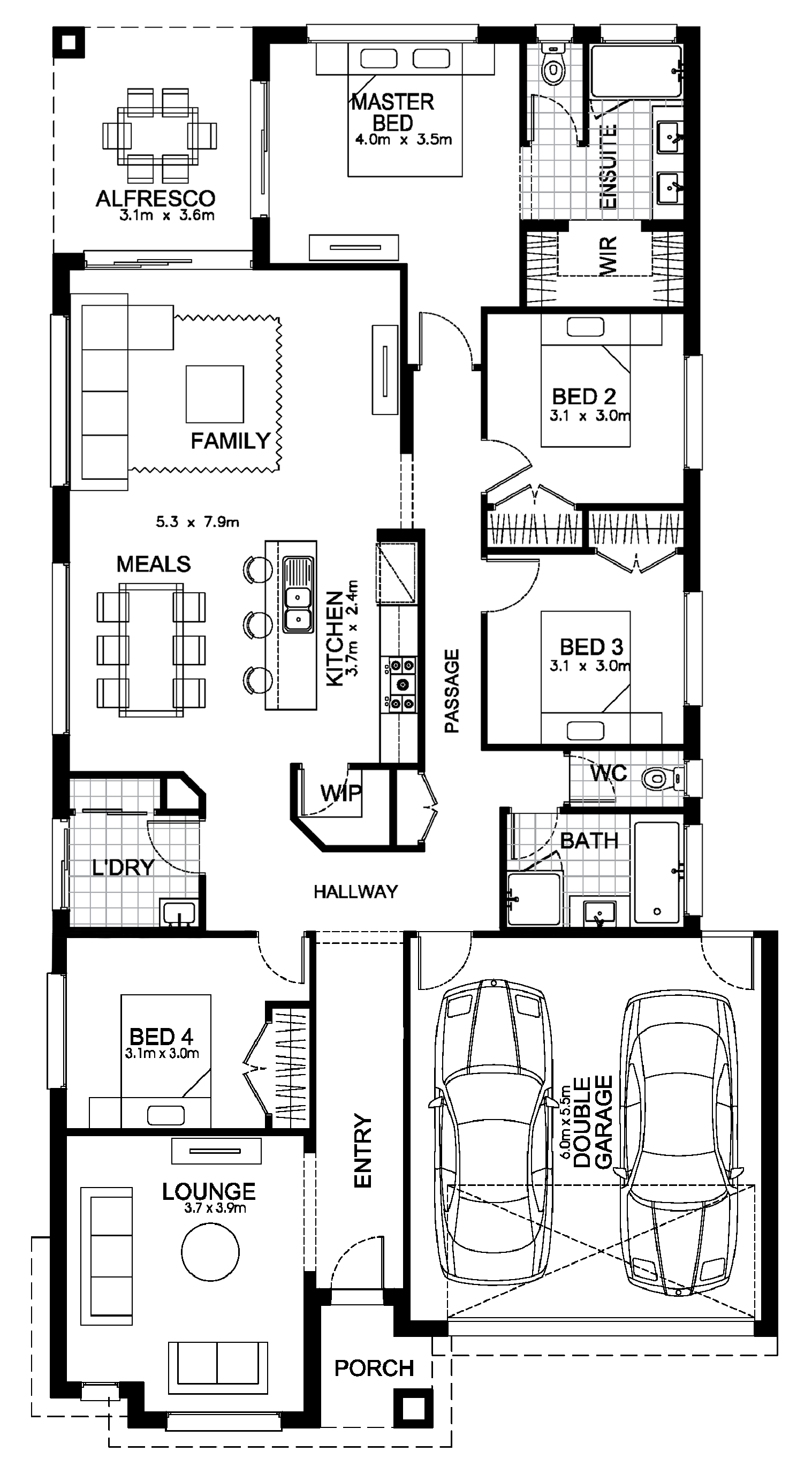
The Johanna 240 perfectly combines contemporary style, practicality, and comfort in a beautifully designed single-storey layout. Set on an approx. 507m² allotment, this 4-bedroom home offers the ideal balance of open-plan living and functional spaces, tailored for modern family life.
At the heart of the home is a light-filled open-plan family and meals area, anchored by a stunning designer kitchen complete with stone benchtops, a walk-in pantry, and premium stainless-steel appliances. Sliding doors extend the living space to a covered alfresco, creating a seamless flow for entertaining or relaxing with family.
A separate lounge at the front of the home provides a private retreat or ideal second living space, while the master suite offers a peaceful escape with a walk-in robe and ensuite. Three additional bedrooms are positioned in their own wing, serviced by a central bathroom and separate WC. Thoughtfully designed for everyday living, the Johanna 240 also includes a dedicated laundry with external access, generous storage solutions, and a double garage with internal entry.
Home Highlights:
-
Four bedrooms including a master suite with ensuite and walk-in robe
-
Open-plan family and meals area with separate lounge
-
Designer kitchen with stone benchtops, walk-in pantry, and premium appliances
-
Seamless indoor–outdoor connection to the covered alfresco
-
Stylish finishes, designer lighting, and a cohesive colour palette
-
Ducted heating and cooling for year-round comfort
-
Practical storage throughout, including linen and pantry
-
Separate laundry with external access
-
Double garage with internal entry
Situated in a sought-after, family-friendly estate close to schools, parks, shopping, and transport, the Johanna 240 delivers the perfect combination of lifestyle, convenience, and style.
Builder: Mimosa Homes – Johanna 240
Bedrooms: 4 | Living: 2 | Bathrooms: 2 | Garage: 2
Outdoor: Covered alfresco and fully landscaped gardens
Status: Ex-display home, first time available
Award: 2022 HIA Victoria Finalist
Private inspections by appointment.
Note: Photos are of the actual home while operating as a display. All information is provided in good faith; interested parties should make their own enquiries and confirm inclusions prior to purchase.
- Price:$820,000 - $840,000
- Bedrooms: 4
- Bathrooms: 2
- Carparks: 2
- Land Size: 507
- Building Size: 223.6
